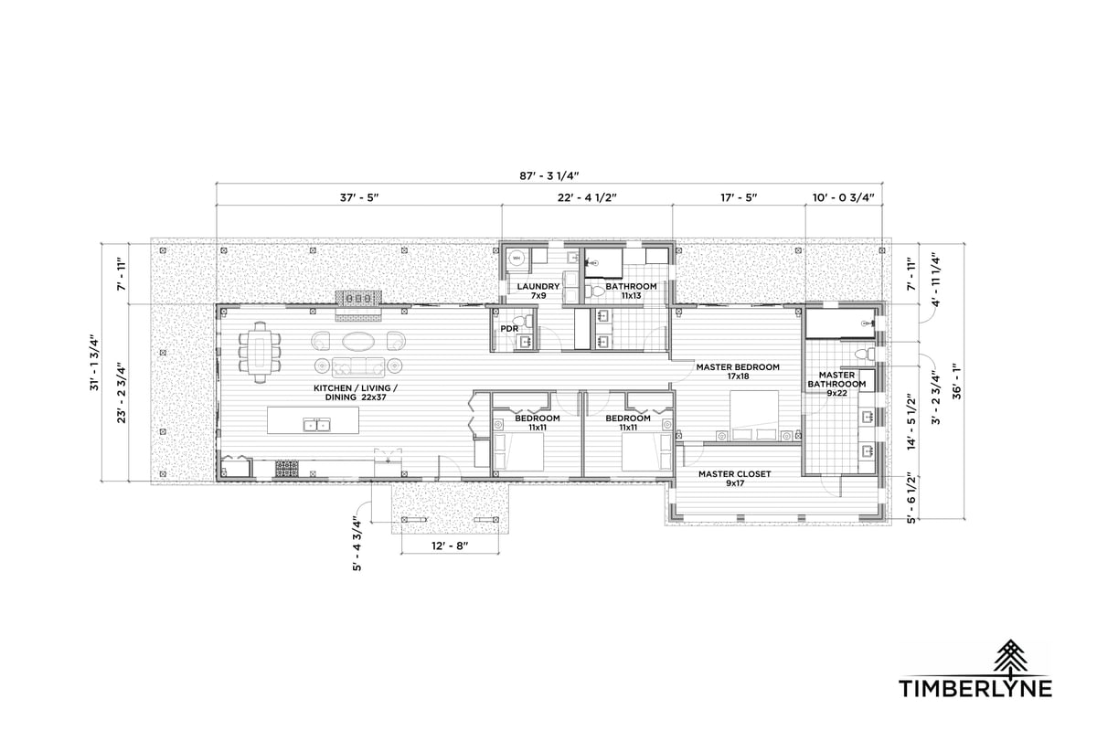
2214 Sq.Ft. Home

2,214 Sq. Ft. Conditioned Space

752 Sq. Ft. Porch Space

Starting At: $140,147

Select A Design > Customize The Plan > Build Your Dream

  • Shipping, engineering, sales tax not included.
  • Prices subject to change.
  • Renderings for visual reference only. Local codes may require different timber sizes, plates, or changes to dimensions.

Package Overview

Energy Efficient. Bigger Timbers. Flexible Designs.

  • 3 bedrooms, 2 bathrooms
  • 2,214 Conditioned Sq Ft at Ground Level
  • Additional 752 Sq Ft of Unconditioned Porch Space
  • 8x8 (and larger) post and beam frame with steel plate joinery
  • Timbers precision cut with state-of-the-art CNC machine
  • Design revisions (Add length, swap accessories, change floor plan)
  • Pre-cut jumbo R-42 SIPs for energy efficiency and quicker install
  • Superior sealed enclosure with exposed timbers

Standard Options

  • Frame: 8x precision-cut timbers, powder-coated steel joinery
  • Walls: 2x6 vertical framing, sheathing, house wrap, KD pine siding: 1x10 board, 1x4 batten
  • Roof: 5-1/2" x 9" SYP Glulam rafters, 1x8 T&G roof decking, roof underlayment
  • Roof insulation: R-42 SIP package
  • Porch: 6x8 rafters, 2x6 T&G roof decking, roof underlayment
  • Structural building plans & foundation plans
  • Construction guide and phone support

  • Final roofing material, residential doors, windows
  • Interior walls, wall insulation, interior finishing
  • HVAC, plumbing, and electrical
  • Site prep, foundation, utility hookups
  • Installation
  • Fireplace

Standard Package Diagram

Standard Package Diagram

Ready to Get Started?

Start Your Journey