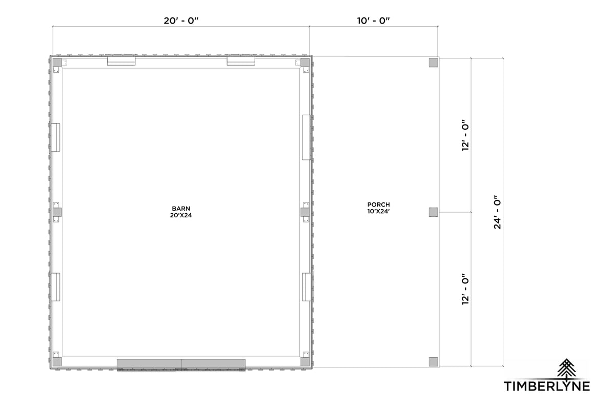
480 Sq.Ft. Barn

20'x24' Ponderosa Country Barn, 10' Lean-To

Starting at: $30,240

As Shown with Optional Accessories: $36,992

  • Shipping, engineering, sales tax not included.
  • Prices subject to change.
  • Plans shown with optional accessories.
  • Renderings for visual reference only. Local codes may require different timber sizes, plates, or changes to dimensions.

Package Overview

Bigger Timbers. Flexible Designs.

  • 8x8 (and larger) post and beam frame with steel plate joinery
  • Timbers precision cut with state-of-the-art CNC machine
  • Design revisions (Add length, swap accessories, change floor plan)
  • Handcrafted millwork accessories optional

Standard Options

  • Frame: 8x precision cut timbers, powder coated steel joinery
  • Walls: 2x6 girts, sill, CDX, KD pine siding: 1x10 board, 1x4 batten
  • Roof: 4x6 purlins, KD 1x10 roof decking & soffit, roof underlayment
  • Structural building plans, foundation plans
  • Construction guide and phone support
Optional Accessories:
  • (4) 6-Lite 26”x37” Hopper Windows
  • (1) 42”x7’ Walk-Out Door
  • (1) 10'x8’ Double Sliding Door
  • (2) Copper Louvered Gable Vents

  • Loft or stair package
  • Final roofing material
  • Interior walls, wall insulation, interior finishing
  • HVAC, plumbing, electrical
  • Site prep, foundation, utility hookups
  • Installation

Standard Package Diagram

Standard Package Diagram

Ready to Get Started?

Start Your Journey