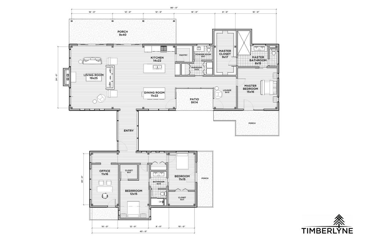
3050 Sq.Ft. Home

505 Sq. Ft. Outdoor Living Space

$290,072 - $318,502

- Price varies depending on wall system and design line options.

Package Overview

  • Package Overview – 3,555 Sq Ft Single Story Home
  • 3 Bedrooms, 2.5 Bathrooms, 1 Office
  • 3,050 Conditioned Sq Ft at Ground Level
  • Additional 505 Sq Ft of Functional Outdoor Areas
    • 385 Sq Ft at Outdoor Living
      • Single-Slope Timber Frame Structure
    • 120 Sq Ft at Outdoor Patio (Half Covered with Flat Ceiling)
      • Single-Slope Timber Frame Structure
    • Open Air Areas at Master Bedroom, Office, and Guest Bedroom
  • 8x8 (and larger) heavy timber frame with wood-to-wood connections
  • Timbers precision cut with state-of-the-art CNC machine
  • Design revisions (Size modifications and timber frame integration)
  • Pre-cut R-42 SIPs for energy efficiency and quicker install
  • Superior sealed enclosure with exterior siding

Standard Options

  • Construction Documents:
    • Architectural Building Plans and Design Assist Deliverables
    • Stamped EOR Structural Documents (Foundation, Shear, Lateral, Sizing)
  • Timber Frame Structure:
    • Douglas Fir #1&Better, Free of Heart Center Timbers - 8x, 6x, 4x Sizes
    • Timber Frame Gravity and Connection Design and Structural Engineering
    • Project Management & Coordination with Client, Contractor, Engineer
    • CNC Programming and Precision Timber Cutting, Pre-fitting & Checking of All Parts
    • Oak Pegs and Concealed Fasteners/Hardware, Custom Galvanized Post Base Plates
  • Tongue & Groove Decking:
    • 1x6 Douglas-Fir Tongue and Groove Decking (Interior Finished Ceiling over Timber Frame Structure)
    • 2x6 Douglas-Fir Tongue and Groove Decking (Exterior Structural and Finished Ceiling over Timber Frame Structure)
  • Wall Package:
    • GOOD: 2x6 Stick-Frame Material, ZIP System Sheathing, Rain Screen
    • BETTER: 2x6 Stick-Frame Material, ZIP-R System Sheathing, Rain Screen
    • BEST: Structural Insulated Panels at different thicknesses and R-Values
  • Roof Package: Structural Insulated Panels at different thicknesses and R-Values
  • Siding: KD pine siding: 1x10 board, 1x4 batten

  • Site prep, foundation, utility hookups
  • Interior walls, wall insulation, interior finishing
  • HVAC, plumbing, and electrical
  • Shipping and/or Installation of the items listed above
    • (form timber frame to siding)
  • Stairs, Lifts, and/or Ramps
  • Wood Flooring and/or Trim
  • Finished Roof, Doors and Windows
  • Landscaping

Standard Package Diagram

Standard Package Diagram

Ready to Get Started?

Start Your Journey